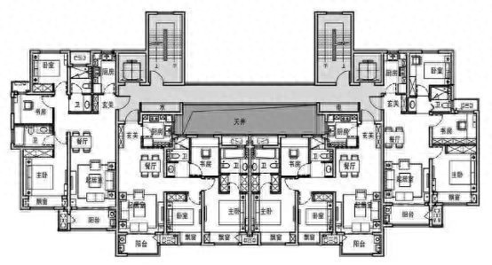
这两个连廊户型你们选哪个,反正我不会选第二个
这两个连廊户型你们选哪个,反正我不会选第二个
在大城市真是不好,要是买房子买到中间户连廊户型,那真是不太爽,关键是有好多人第一次买房,不懂什么叫着连廊户,稀里糊涂被置业顾问一忽悠,就买了,
交房后才发现回家好经过一条长长的走廊,特别是遇到雨雪天,还得担心受怕孩子会不会摔倒。
今天就给大家分享两种连廊户型,虽然都是连廊户型,但是差异还是挺大的
第一种是一个典型的连廊户型,一梯两户,然后两个单元中间有连廊连着,这是高层消防要求,必须要有中间逃生通道。

电梯在两边
这种连廊户型就是中间两户挨着连廊,旁边两个边户是不受影响,这种连廊户型还好,因为电梯不是在连廊的中间,回家不用经过连廊,
唯一不好的影响就是中间户的北面窗户都是对着连廊的,这个隐私性稍微差点。
但是我觉得这个不是主要问题,还是可以接受的,接下来我们看下第二种连廊户型,这种连廊户型是我没法接受的

电梯在中间
这种户型设计电梯在中间,不管是边户还是中间户,回家都得经过一条长长走廊,这个设计有点别扭了。
说实话,居住楼层很高的话,走在连廊上都有点恐高,对于好多有轻微恐高症的人,是一种挑战呢。所以我是不会选择这个户型的楼盘。
其实好多人第一次买房子,都不知道是连廊户型,因为你不跟置业顾问要,置业顾问不会给你整层平面图,你最多可以看到自己家的户型图,但从户型图中是看不出来的。
现在市面上比较常见的是第二种连廊户型,为啥呢,因为大家可以比较下,就会发现第二种连廊户型只需要建设一个步梯,而第一种连廊户型需要建设两个步梯,这不无形增加了建设成本。
所以在这里也是提醒大家,买房子有条件的要去现场看看,看看是不是槽钢层、带连廊啥的,或者也可以跟置业顾问要一下整个楼层的平面图,这样才能清楚知道电梯、楼梯、设备间都在什么位置。
我们在买房子的时候一定不要着急,顾问说啥就是啥,一定要多看多问多了解才下手。
-
- 无性婚姻对女人的伤害有多大
-
2026-04-05 06:22:21
-
- 为什么南京长江大桥不能拆了重建?真的是中国人的骄傲。
-
2026-04-05 06:20:06
-
- 微纪录丨川妹子胡月:我登上了冬残奥会开幕式
-
2026-04-05 06:17:52
-
- 台湾红衣小女灵异事件
-
2026-04-05 06:15:38
-
- 苏紫紫一丝不挂接受采访直言:“你敢看我么?”
-
2026-04-05 06:13:24
-
- 平川区长征街道综合养老服务中心:墨香润晚晴 书写金色晚年
-
2026-04-05 06:11:09
-
- 南太铉涉毒风波从语论风暴到法院判决
-
2026-04-05 06:08:55
-
- 结婚红包吉利数字一览表
-
2026-04-05 06:06:41
-
- 欢喜闹元宵
-
2026-04-05 06:04:26
-
- 广东省珠三角环线高速的重要组成
-
2026-04-05 06:02:12
-
- 读于右任《望大陆》
-
2026-04-05 05:59:58
-
- 踩到网友敏感带!沈月微博配图引争议!小孩派Vs动物派掀骂战!
-
2026-04-05 05:57:43
-
- 八图教你看懂解放军军衔
-
2026-04-05 05:55:29
-
- 2023年全国百强中学排名已洗牌,前10实力非凡!
-
2026-04-05 05:53:15
-
- 30万的平民跑车首选:丰田86纯个性,玩性十足的跑车
-
2026-04-05 05:51:00
-
- 组图:正月初八,龙口市秧歌展演现场掠影
-
2026-04-05 05:48:46
-
- 中国圣诞:让老外眼前一亮的独特习俗
-
2026-04-05 05:46:32
-
- 依规处理用戒尺打学生手心的老师时也要顺应民意,切不可一意孤行
-
2026-04-05 05:44:17
-
- 芜湖雕塑公园
-
2026-04-05 05:42:03
-
- 刘强东爱情抉择:政界精英龚晓京vs商界才女奶茶妹妹,谁才是真爱
-
2026-04-05 02:24:23



盘点台湾省历任领导人及其两岸政策
乔任梁被吊图片肠子(乔任梁吊死照片)