人见人爱的农村三间三层别墅大全图片,这三款案例一款比一款美
人见人爱的农村三间三层别墅大全图片,这三款案例一款比一款美
现在越来越多的人选择回到农村建房,不管是给父母住也好,自己养老也好,农村的根总不能丢下。今天为大家推荐的这三款农村三间三层别墅大全图片,人见人爱的好看户型,很多朋友建好之后,村里的人就跟着效仿,所以打算建房的朋友可以参考下哦,等到建房子时候可以参考。
第一款:农村三层房屋设计图,砖混结构,带地下室设计
图纸介绍:这款三层别墅占地140平方米,带地下室(地下储藏间)设计,外观高端大气,舒适感爆棚,值得建的好房子,整栋建筑所呈现出的色彩也就是米黄色墙体与红色屋顶、窗框线条装饰,显得十分的庄重优雅,大家风范十足,周边环境静谧,有一种曲径通幽处的感觉。多窗多阳台设计,采光足,屋内显得十分亮堂。屋檐宽厚,构造独特,细节处很用心,装饰点缀,升华了整体建筑的复古感。三层露台设部分凉亭与内屋相连,而非是通俗的内外分隔,起到了一种内外相通的效果。
占地面积:12.18m*12.96m,138.12平方米左右;
建筑层高:三层;
建筑高度:12.7米(含屋顶);
设计功能:
地下室: 储物间;
一层户型:客厅、餐厅、厨房、棋牌室、卧室、卫生间;
二层户型:休闲厅、卧室(带衣帽间、卫生间)、卧室x3、书房、卫生间、阳台;
三层户型:卧室x2、杂物间、卫生间、露台;





三层房屋设计图
第二款:农村三层复式别墅户型图,占地120平米,现代风格设计
图纸介绍:这款三层复式别墅占地120平方米,带地下室设计,旋转楼梯,现代风格,别墅外观简洁大气。入户即是玄关,左拐角就是宽敞明亮的客厅,也可以作为会客室,一层的客厅上方做了挑空设计,加大了整体的视觉效果,保证屋内阳光充足与通风稳定,非常高端大气上档次。三楼设有洗衣房,是最大亮点,生活便利又有品质,喜欢健身,热爱生活的业主,要求单独设计的运动大厅,在保证良好的生活品质同时,后期也能改造成其他作用。超大阳光大露台保障了室内的通风与采光,同时还能够打造空中花园,白天可以赏花饮茶,晚上可以赏月。
占地面积:12.26m*10.96m,120.78平方米左右;
建筑层高:三层;
建筑高度:13.029米(含屋顶);
设计功能:
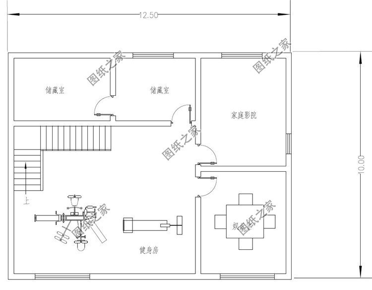
地下室户型图:储藏室x2、娱乐室、家庭影音、健身房;
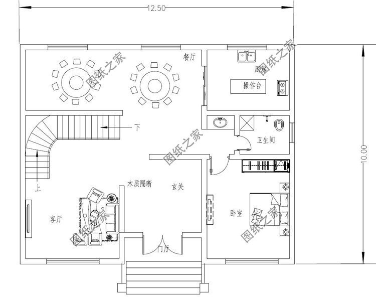
一层户型:玄关、客厅、餐厅、厨房、卫生间、卧室;
二层户型:客厅挑空、客厅、卧室(带衣帽间)、卧室x2、卫生间、阳台;
三层户型:健身房、书房、家庭影音、洗衣房、卧室(带衣帽间)、书房、卫生间、露台x2;





三层房屋设计图
第三款:农村三层别墅设计图,占地164平米左右,南北方都适合建造
图纸介绍:这款三层独栋别墅占地164平方米左右,欧式外观,端庄明朗。完美的点线,精益求精的细节处理,带给家人不尽的舒服触感,沉稳大气的棕色外立面点缀精致外墙浮雕,在农村清淡朴素的乡村背景中脱颖而出,室内布局科学合理,同时兼顾乡村传统居住需求
占地面积:12.82m*12.9m,164平方米左右;
建筑层高:三层;
建筑高度:13.50米(含屋顶);
设计功能:
一层户型:客厅、厨房、餐厅、棋牌室、洗衣房、卧室(带卫生间)x2、卫生间;
二层户型:客厅、卧室x3、卧室(带卫生间)x2、阳台;
三层户型:健身区、卧室x3、卧室(带卫生间)、卫生间、露台;




三层房屋设计图
不知道这三款户型大家喜欢哪一款呢?欢迎下方评论留言。本文由图纸之家官网原创,欢迎关注,带你一起长知识!
下一篇:没有了
-
- 精选 54种“端午节”主题手抄报,提前收藏抄作业
-
2026-04-30 16:43:30
-
- 墙倒众人推,破鼓万人捶!“条子”韩兆也开始拿“杨哥”开涮了!
-
2026-04-30 16:41:15
-
- "流氓燕争议:公益行动或变相卖淫?十元店揭示社会隐忧"
-
2026-04-30 16:39:00
-
- 红军血战湘江
-
2026-04-30 16:36:45
-
- 真三国无双4中,让玩家欲罢不能的女性角色有哪些?
-
2026-04-30 16:34:31
-
- 瑞戈非尼大幅降价,这个抗癌药物你了解吗?
-
2026-04-30 16:32:16
-
- 如何留住好员工,老板必学的5个绝招
-
2026-04-30 16:30:01
-
- 寒门逆袭:范进举人之路
-
2026-04-30 16:27:46
-
- 广东夏令营机构有哪些
-
2026-04-30 16:25:31
-
- 约旦旅游避坑指南:你必须要知道的5件事
-
2026-04-29 07:55:09
-
- 滨州市中医医院(滨州医学院附属中医医院)获评全国中医药文化宣传教育基地
-
2026-04-29 07:52:54
-
- WPS还是OFFICE,计算机二级科目这样选容易过
-
2026-04-29 07:50:40
-
- 汇聚公益力量 擦亮“百千万工程”温暖底色
-
2026-04-29 07:48:26
-
- 大明山国庆游玩攻略来啦,教你以最正确的方式轻松玩转大明山~
-
2026-04-29 07:46:11
-
- 美国第一号悬案:到底是谁刺杀了肯尼迪总统?
-
2026-04-29 07:43:57
-
- 一代才女班婕妤,靠智慧和口才在纷乱的后宫中,终得自保
-
2026-04-29 07:41:43
-
- 昔日公孙策变商业巨头,任泉重返聚光灯引惊叹
-
2026-04-29 07:39:28
-
- 回忆原江西进贤一中的创办者,一九五一年被镇反的张景龄
-
2026-04-29 07:37:14
-
- 王光美珍藏的私人图集,太难得了!
-
2026-04-29 07:35:00
-
- 李佳琦拿到上海户口啦!在余杭,直播人才最高可享国家级人才政策
-
2026-04-28 11:04:07



涓€鏉♀€滄垜鎯充簡瑙hongqing鈥? 寮曟潵浜?000+鐣欒█
欧美娱乐圈的殿堂级女演员安姨Julia Ann